• 首页
  • 西朗简介
  • 产品中心
  • 快速卷帘门问答
  • 快速卷帘门资讯
  • 合作客户
  • 联系西朗
苏州西朗门业
  • 首 页
  • 西朗简介
    • 西朗简介资质认证企业文化
  • 产品中心
    • 快速卷帘门抗风快速堆积门硬质快速门保温快速卷帘门工业提升门装卸货平台铝合金电动卷帘门工业大风扇电控系统高档车库门
  • 快速卷帘门问答
    • 快速卷帘门防护快速卷帘门拉链快速卷帘门保温快速卷帘门冷库保温快速卷帘门涡轮硬质快速门抗风快速堆积门工业提升门卸货平台门封货车限动器
  • 快速卷帘门资讯
    • 快速卷帘门资讯技术交流公司新闻
  • 合作客户
  • 联系西朗

Product产品中心

产品中心Product

快速卷帘门
抗风快速堆积门
硬质快速门
保温快速卷帘门
工业提升门
装卸货平台
铝合金电动卷帘门
铝合金卷帘门 铝合金卷帘门 铝合金卷帘门 铝合金卷帘门 天津铝合金电动卷帘门 南通电动卷帘门 无机布防火门 无机布防火门
更多
工业大风扇
电控系统
高档车库门
产品名称:无机布特级防火卷帘门
产品型号:F-098
产品简介:

广泛使用于不设自动喷淋系统的场合,节能,节省投资。

详细介绍

无机特级防火卷帘门

 

适用于不设自动喷淋系统的场合,节能,节省投资
SERANG西朗无机特级防火卷帘门,具有重量轻、减轻对建筑结构的负载;隔热性能好,价格低等优点。具有广阔的发展前景。
技术参数:
1、背火面平均温升≤140℃,单点最高温升≤180℃,耐火极限:≥3.0h;
2、启闭速度:2-9m/min;
3、漏烟量不大于0.2m3/m2min;

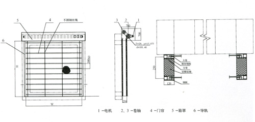
无机布防火卷帘门示意图

无机特级防火卷帘门实拍图

 

 

上一页:声光报警快速门              下一页:铝合金高速门

相关产品

铝合金卷帘门

铝合金卷帘门

铝合金卷帘门

铝合金卷帘门
西朗简介
西朗简介资质认证企业文化
产品中心
快速卷帘门抗风快速堆积门硬质快速门保温快速卷帘门工业提升门装卸货平台
快速卷帘门问答
快速卷帘门防护快速卷帘门拉链快速卷帘门保温快速卷帘门冷库保温快速卷帘门涡轮硬质快速门
快捷链接
网站地图联系我们客户留言诚聘英才管理后台

咨询热线

联系人:朱经理

手机:17798596815

邮箱:2868511148@qq.com

地址:江苏省苏州市吴中区木渎镇走马塘路59号4幢

友情链接:保险柜开锁第三方检测机构广州办公室装修公司柔性防水套管黑色母不干胶贴标机常州装修公司电动丝杠压力试验机工业提升门快速门西朗工业门结构胶厂家公路声屏障氢氧化钙厂家四合院图纸网气体检测仪沟盖板体育看台座椅厂家
Copyright2011- 2025© 西朗门业(苏州)有限公司  苏ICP备19040992号-11

苏公网安备 32050602011795号


苏州快速卷帘门|堆积快速卷帘门|别墅车库门|防爆快速卷帘门|欧标提升门|工业滑升门|洁净快速卷帘门|不锈钢快速卷帘门